Камины и каминные топки от производителя
Каминная топка W10 16,2 кВт PANORAMAКаминная топка W17P PORTOS с дополнительным правым стеклом / временно недоступна
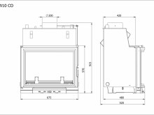
Каминная топка W10 СО PANORAMA с водяным контуром
Цена:
Артикул:
Параметры камина
Вес
154 кг
Номинальная мощность
19,9 кВт
Мощность водяного контура
11,8 кВт
Внешние размеры (ширина х высота по рамке дверцы х глубина)
675x570x520 мм
Размеры главного окна
611,71x428x4 mm R=900
Площадь обогреваемых помещений (м2)
199 м2
Объём обогреваемых помещений (м3)
497 м3
Диаметр дымохода
200 мм
Эффективность
73,7 %
Объем воды
42 л
Камера вторичного дожигания
нет
Подвод наружного воздуха
предусмотрен (дополнительная опция)
Форма стекла топки
панорамное
Наличие шибера
да
Поделитесь с друзьями в социальных сетях:

Каминная топка W10 СО PANORAMA с водяным контуром - используется для отопления помещений, офисов и частных домов, а также как предмет интерьера.
Нижняя часть топки выполненная из чугуна класса EN-GJL- 200 верхняя часть топки выполнена из котловой стали, представляет собой качественный дизайнерский отопительный прибор.
- Густо расположенные радиаторы, увеличивающие пространство теплоотдачи окружению.
- Жароупорное стекло
- Гарантия 5 лет
СОВРЕМЕННЫЙ ДИЗАЙН

- Шибер регулирует силу тяги дымохода
- Дефлектор увеличивает КПД и продлевает время горения топки
- Дополнительная жаростойкая плита, защищающая тыльную сторону от прогорания
- Декоративное ограждение, обеспечивающее дрова от выпадения
- Регулирование притока воздуха через зольник
- Возможность подвода наружного воздуха к камере сгорания (опция)
В связи с ручной обработкой каждого камина, вес и размеры могут незначительно отличаться от указанных.







